Онлайн книга «Финикийцы. Основатели Карфагена»
|
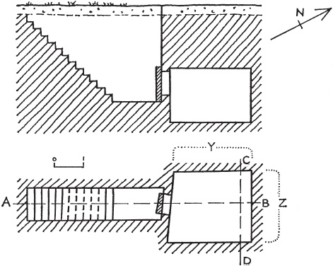
Какой бы обряд ни применялся, финикиец выбирал хорошую могилу: по меньшей мере каменную гробницу, саркофаг или урну – и обычно не довольствовался просто ямой в земле. В финикийских захоронениях прослеживается некоторое влияние Египта. Могилы Библа, по времени соответствующие концу XII египетской династии (около 1800 года), представляли собой высеченные в скале большие камеры шести и более метров глубиной с наклонным дромосом, коридором, ведущим в погребальную камеру от вертикального колодца. В камерах находились саркофаги и погребальные принадлежности. Таковы были прототипы классической финикийской могилы. Таковой являлась и могила Ахирама (начало X века), такой тип господствовал и в Сидоне в персидский период, только здесь доступ в камеру открывался прямо из вертикальной шахты, а дромос отсутствовал. Кое-где саркофаг помещался на дне самой вертикальной шахты. Подобные захоронения были обычными в V и последующих веках на больших некрополях в Бордж-Джедид, Сте-Моник и других кладбищах Карфагена. Иногда глубина доходила до 20 и 30 метров (рис. 29), что требовало определенного мастерства и, видимо, было вызвано желанием уберечь захоронение от грабителей. Часто на дне шахты было не более двух-трех камер, а в стенах вырублены опоры для ног. У более мелких могил часто в вертикальном колодце имелась лестница, но только когда могила была вырублена в скале и, следовательно, имелся подходящий материал, как в Джебель-Млецца на мысе Бон (рис. 30, 31а, b). ![]() Рис. 29. Вертикальные сечения захоронения, глубина 20 м. Карфаген. Обратите внимание на вырубленные в боковой стене ступеньки. III век до н. э. Также встречались могилы полностью или частично построенные. Захоронение Эшмуназора II в Сидоне было довольно мелким, вырубленным в скале с построенной из камня входной камерой выше уровня земли. Многие ранние могилы Карфагена представляли собой камеры, построенные над мелкими углублениями в земле (рис. 32), а типичная финикийская могила на Мальте состояла из вырубленной в скале мелкой шахты, ведущей в погребальную камеру, закрытую каменной плитой. Там, где имелись каменистые утесы или мысы, могилы вырубались высоко в склоне. Хорошей сохранности образцы IV века и более поздние находят в Кальяри и в Северной Африке, но не в самом Карфагене. За пределами некрополей часто встречаются прямоугольные, вырубленные в скальных породах каменные гробницы. ![]() Рис. 30. План и сечение захоронения 8. Джебель-Млецца, мыс Бон. IV век до н. э. Несмотря на то что обычный финикиец предпочитал скальную гробницу, временами он не брезговал и простой могилой, особенно если под рукой не было подходящей скалы. В Карфагене и Утике много ранних захоронений такого типа, а в Мотии, где скальные гробницы не практиковались, погребение в землю осуществлялось в мелкие могилы в саркофагах, обычно монолитных. Вероятно, особенно в ранние периоды, эти могилы не отмечались надгробными памятниками из страха перед грабителями. Если памятники все же ставили, то, видимо, они были деревянными или из других нестойких материалов, ибо только в гораздо более поздний период и, возможно, под влиянием греков появились надгробия, подобные памятникам некрополя Сте-Моник в Карфагене (рис. 68). Позднее также встречаются подземные могилы монументального типа с камерой и дромосом с возвышающимся над уровнем земли надгробным памятником. В метрополии самыми известными являются три: один в Марате – трехэтажный цилиндрический; второй – в форме слегка сужающегося кверху цилиндра на четырехугольном пьедестале, увенчанного пятисторонней пирамидой; третий – также пирамидальный в верхней части, но призматический в нижней и стоящий на двухступенчатом пьедестале. Самый ранний из трех – первый, вероятно, относится к V или IV веку до н. э., поскольку в его архитектурных деталях чувствуется персидское влияние; другие, возможно, на столетие или два моложе. Подобные надгробные памятники встречаются и на западе. Известно надгробие в Тунисе, в Дуге, надпись на котором на ливийском и пуническом языках сообщает, что это памятник Атебану, сыну Йепматата, построенный пуническим архитектором Абаришем, сыном Абдастарта, и двумя его помощниками, Замаром и Манджи, а также плотниками и кузнецами. Погребальная камера находилась в самом нижнем этаже со входом с северной стороны монумента. Этот Атебан, скорее всего, был нумидийским царем или князьком конца III или начала II столетия до н. э. Похоже, что у самого Масиниссы была подобная могила около его столицы Цирты (Константины) . ![]() Рис. 31а. Украшения на западной стене (Y на рис. 30), могила 8. Джебель-Млецца ![]() Рис. 31b. Украшения на северной стене (Z на рис. 30), могила 8. Джебель-Млецца На восточной и западной стенах могилы в Джебель-Млецца изображены два двухэтажных здания, рядом с каждым из которых находится алтарь (рис. 31а). Изображения ли это могил, как думали археологи, или храмов? Вероятно, различие не так уж и велико, так как финикийские мавзолеи одновременно были и храмами. Вполне естественно предположить, что финикийские захоронения всегда находились за пределами жилых районов, а если так, то холмы Сен-Луи и Юноны в Карфагене (рис. 4), где обнаружены несколько самых ранних могил, были включены в границы города лишь после VII столетия. Однако, согласно общепринятой исторической традиции, холм Сен-Луи входил в цитадель с самых ранних дней существования города. Вполне возможно, что ранний некрополь на острове в Мотии также находился вне жилых кварталов, ибо крепостная стена, построенная не ранее VI века, пересекает его. Однако можно с уверенностью сказать, что, когда окруженный стеной Карфаген занимал большую часть перешейка (рис. 3), захоронения попадали в эту окруженную стенами территорию: в общем-то другого места для них не было. С ростом торговых кварталов самые ранние некрополи были забыты и осквернены. Жители Мотии, с другой стороны, к VI веку перенесли свой некрополь на материк. В течение всего рассматриваемого нами периода как на востоке, так и на западе иногда использовались гробы. Несомненно, это могли позволить себе лишь богачи. Некоторые саркофаги были простыми прямоугольными монолитами с островерхими или плоскими крышками: первый тип был более типичен для запада, второй – для востока, хотя островерхие крышки попадаются и на поздних саркофагах Карфагена. Монолитные саркофаги VI века изредка попадаются в Утике и Карфагене, в IV веке уступая место, по меньшей мере в Утике, саркофагам, сделанным из отдельных плит. В Утике также найдены могилы, построенные из кирпича. В Мотии монолитные саркофаги использовались для погребений в землю в более поздний период, однако каменные гробницы для кремированных останков часто не были монолитными. Деревянные гробы попадались и на востоке и на западе. Скудные остатки их найдены Делаттром в некрополе Сте-Моник. |
![Иллюстрация к книге — Финикийцы. Основатели Карфагена [_29.jpg] Иллюстрация к книге — Финикийцы. Основатели Карфагена [_29.jpg]](img/book_covers/054/54078/_29.jpg)
![Иллюстрация к книге — Финикийцы. Основатели Карфагена [_30.jpg] Иллюстрация к книге — Финикийцы. Основатели Карфагена [_30.jpg]](img/book_covers/054/54078/_30.jpg)
![Иллюстрация к книге — Финикийцы. Основатели Карфагена [_31.jpg] Иллюстрация к книге — Финикийцы. Основатели Карфагена [_31.jpg]](img/book_covers/054/54078/_31.jpg)
![Иллюстрация к книге — Финикийцы. Основатели Карфагена [_31_.jpg] Иллюстрация к книге — Финикийцы. Основатели Карфагена [_31_.jpg]](img/book_covers/054/54078/_31_.jpg)