Онлайн книга «Ацтеки. Быт, религия, культура»
|
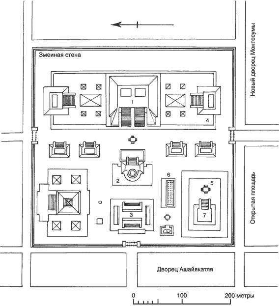
Там и сям в дамбах были проделаны ходы, чтобы каноэ могли проплывать из одной части озера в другую, через эти каналы были перекинуты деревянные мосты, которые можно было убрать при приближении врага. Через определенные расстояния на акведуках находились резервуары, ими заведовали люди, ответственные за наполнение водой каноэ продавцов воды, циркулировавших в каждом квартале города. ![]() Рис. 23. План храмового комплекса: 1. Алтари Тлалока и Уицилопочтли 2. Храм Кецалькоатля 3. Площадка для игры в мяч 4. Храм Тескатлипоки 5. Возвышение для гладиаторских боев 6. Подставка для черепов 7. Храм Солнца. На востоке простиралось открытое водное пространство, и в ясный день на горизонте были видны пирамиды Тескоко. Между этими двумя городами устроена насыпь, которую преподнес Нецауалькойотль в дар Монтесуме I. Эта дамба протяженностью 10 миль была снабжена шлюзами, позволяющими контролировать уровень воды в озере во время наводнений, но ее основным предназначением было препятствовать соленым водам восточной части озера Тескоко проникать в орошаемые сады Теночтитлана. Защищенная дамбой ацтекская столица, словно мексиканская Венеция, стояла в искусственной лагуне, наполняемой свежей водой источников. Некоторые горожане постоянно жили на плотах или рукотворных островках, где выращивались овощи для города, но каждый район Теночтитлана был доступен с воды. Планировка города с его каналами и мостами напоминала сетку. Соратник Кортеса оставил свое описание Теночтитлана: «Великий город… здесь много широких улиц, хотя две или три из них превосходят остальные. Половина дорог – водные, так что жители путешествуют в своих каноэ или лодках, сделанных из выдолбленного ствола дерева, некоторые из лодок достаточно велики, чтобы с удобством разместить пять человек. Жители прогуливаются – кто в каноэ, кто пешком – вдоль берега и беседуют друг с другом. Все прочие города, расположенные на озере, распланированы таким же образом». Город был разделен на четыре района, называемых Куэпопан (Место, Где Цветут Цветы), Мойотлан (Место Москитов), Ацакоалько (Место Цапель) и Теопан (Место Богов) – в квартале Теопан находился храмовый комплекс, главная точка города. Храмовый комплекс
В плане район, где находится храм, выглядит как прямоугольник размером 350 на 300 метров. Он был огорожен каменной стеной, украшенной змеиными головами. Три дороги, превращенные в главные улицы, сходились у ограды и заканчивались возле укрепленных ворот в Змеиной Стене. Самыми красивыми были Ворота Орла, над которым возвышался огромный каменный орел, а по бокам от него – ягуар и медведь. За оградой находились храмы наиболее важных богов. Здесь также стоял постамент с уложенными в ряд черепами принесенных в жертву людей, чуть поодаль – камень с прикованными к нему пленниками, предназначенными для гладиаторского жертвоприношения. Возле ворот располагалась площадка для ритуальной игры в мяч. В меньших по размеру зданиях были склады, жилища жрецов, комнаты для постящихся и кающихся, а также жреческие школы. Главным сооружением в городе был Великий Храм – пирамида с двумя алтарями, Тлалока и Уицилопочтли. Пирамида основанием 90 на 70 метров (не считая окружающей ее платформы) возвышалась четырьмя или пятью ярусами на высоту около 30 метров. У фасада бок о бок шли две лестницы с балюстрадой, оканчивающейся у подножия храма огромными змеиными головами из раскрашенного камня. Наверху балюстрады изменяли свой наклон и становились почти вертикальными, образуя четыре постамента, или платформы. На каждом из таких постаментов располагался скульптурный знаменосец, вырезанный из камня в виде сидящего индейца, обхватившего руками колени. Кисти его рук образовывали кольцо, в которое вставлялось древко флага, изготавливаемого из бумаги или перьев. ![]() Рис. 24. Каменная змеиная голова – одна из двух, что находились у подножия лестницы Великого Храма в Теночтитлане. ![]() Рис. 25. Каменный флагшток в виде сидящего человека. Древко знамени вставлялось в отверстие между руками, основание древка покоилось в углублении у основания фигуры. Из Теночтитлана. Вершина пирамиды была срезана и образовывала площадку, на которой располагались храмы двух богов. Оба храма имели одну и ту же конструкцию – они были похожи на большие ящики с одной дверью и совсем без окон. Храмы венчали высокие покатые крыши в форме усеченных конусов, сделанных из дерева и облицованных штукатуркой. Нижний край каждой крыши был декорирован: храм Тлалока расцвечен синими и белыми полосами, а храм Уицилопочтли украшен белыми каменными черепами, ярко выделявшимися на красном фоне. На вершине каждой крыши располагался конек – в виде раковин на храме Тлалока и бабочек на святилище Уицилопочтли, перед храмами стояли два каменных блока, на которых совершались жертвоприношения. За этими алтарями пылали огромные жаровни, некоторые из них были размером с человеческий рост. ![]() Рис. 26. Каменное украшение для крыши из Великого Храма в Теночтитлане. Рядом с Великим Храмом стоял еще один – посвященный Кецалькоатлю, – о котором Диас писал: «…Одна из его дверей была сделана в форме ужасающей пасти, подобной челюстям ада. Пасть была открыта, и в ней виднелись огромные клыки. Возле двери располагались фигуры демонов и фигуры, похожие на змей, чуть поодаль находилось место, где совершались жертвоприношения; все – залитое кровью и черное от копоти». Возле храмов стояли каменные плиты для разделки человеческих тел и кувшины с водой для приготовления человеческого мяса – неотъемлемая процедура некоторых ритуалов. На внутренних поверхностях стен и деревянных частях храмов были вырезаны изображения богов. И всюду кровь и запах, который, как отмечал Диас, хуже, чем на бойнях в Испании. Идолы, стоявшие в этих мрачных, пугающих храмах, были вырезаны из камня или дерева и украшены разного рода ценными предметами. Вот как Андрес де Тапиа описывает двух каменных идолов, каждый из которых был около 3 ярдов высотой: «…Камень покрыт перламутром, а поверх него – посаженными на клейкую массу золотыми изделиями, фигурками людей, змей, птиц и иероглифами, сделанными из крупных и мелких кусков бирюзы, изумрудов и аметистов. Перламутра почти не видно было из-под украшений. Золотые пояса у этих идолов имели вид змей, на шее у них висели десять или двенадцать золотых сердец, а на лицах были маски из золота, и глаза их были как зеркало [1] ». |
![Иллюстрация к книге — Ацтеки. Быт, религия, культура [i_023.jpg] Иллюстрация к книге — Ацтеки. Быт, религия, культура [i_023.jpg]](img/book_covers/054/54069/i_023.jpg)
![Иллюстрация к книге — Ацтеки. Быт, религия, культура [i_024.jpg] Иллюстрация к книге — Ацтеки. Быт, религия, культура [i_024.jpg]](img/book_covers/054/54069/i_024.jpg)
![Иллюстрация к книге — Ацтеки. Быт, религия, культура [i_025.jpg] Иллюстрация к книге — Ацтеки. Быт, религия, культура [i_025.jpg]](img/book_covers/054/54069/i_025.jpg)
![Иллюстрация к книге — Ацтеки. Быт, религия, культура [i_026.jpg] Иллюстрация к книге — Ацтеки. Быт, религия, культура [i_026.jpg]](img/book_covers/054/54069/i_026.jpg)