Книга Ацтеки, майя, инки. Великие царства древней Америки, страница 167 – Виктор В. фон Хаген

Авторы: А Б В Г Д Е Ж З И Й К Л М Н О П Р С Т У Ф Х Ч Ш Ы Э Ю Я
Книги: А Б В Г Д Е Ж З И Й К Л М Н О П Р С Т У Ф Х Ц Ч Ш Щ Ы Э Ю Я
Бесплатная онлайн библиотека LoveRead.ec

Онлайн книга «Ацтеки, майя, инки. Великие царства древней Америки»

📃 Cтраница 167

При всем том, что тростниковые лодки оригинальны, они далеко не уникальны. Народы других культур, жившие в местах, где не росли деревья или древесину непросто было достать, делали более или менее похожие лодки. Египтяне, как можно увидеть на барельефе гробницы в Саккаре (2500 до н. э.), изображают работников, изготовляющих тростниковую лодку из стеблей папируса. Другая скульптура из гробницы Дейр-эль-Бахри, относящаяся к тому же периоду, изображает другую лодку из папирусных стеблей под парусом с двуногой мачтой (лодками такого типа до сих пор пользуются жители озера Титикака). К тому же современные племена, такие как, например, племя динка на Белом Ниле, используют лодки, сделанные из стеблей тростника ambatch. Все эти схожие культурные черты, как было последовательно показано на страницах этой книги, являются случайными соответствиями, достигнутыми независимо друг от друга людьми, которые живут в схожих географических условиях. Это показывает, насколько в действительности ограничена фантазия человеческого существа.

Ne plus ultra – «не ходить дальше» – таков был психологический барьер, мешавший выходу из Средиземного моря в Атлантику, и на протяжении тысячи лет он удерживал человека от риска выйти за пределы Старого Света. Море было гораздо большим барьером для жителей Америки, чем для жителей Евразии. Эта мысль укоренилась так глубоко, что Инка даже не мог представить себе возможность вторжения с моря. Доктор Джордж Кублер выразился так: «Роковая ошибка Атауальпы [Великий Инка, захваченный испанцами в плен в сердце его государства силами всего лишь 106 пеших солдат и 62 всадников] состояла в том, что он не понимал имевшейся у испанцев возможности получать подкрепления по морю. Его жизненный опыт и опыт его династических предшественников говорил ему, что никакое общество или государство, расположенное на побережье, не может расширяться против желания объединенной и могущественной группы людей, живущих в горах, так как океан за их спинами представлял собой непреодолимое препятствие, через которое не могла проникнуть никакая помощь [выделено автором]».

Это была роковая ошибка Инки.

Курьер часки

С древнейших времен человек предпринимал попытки передачи информации; он кричал и свистел, стоя на одном холме, человеку, находящемуся на другом, он посылал дымовые сигналы, бил в барабаны, пробовал использовать эстафеты с участием людей, лошадей и почтовых голубей. Он стрелял из пушек, но, пока не был изобретен телеграф, никакая система связи не была такой быстрой, как система курьеров часки, усовершенствованная инками. Это правда, что и другие культуры создали эстафетную систему. Из них лучше всего известна персидская, так как Геродот писал: «В мире нет ничего, что двигалось бы быстрее, чем эти персидские курьеры; сама эта идея – изобретение персов…» Он объясняет, как конные всадники размещались на почтовых станциях вдоль дороги через определенные интервалы, а затем сообщения передавались по эстафете одним всадником другому.

Римляне, система связи у которых была более упорядочена, полагались на эстафеты (схожие с работой конных почтальонов почтовой службы «Пони-экспресс» на западе США). Но даже тогда, в эпоху расцвета Римской империи (по прекрасно проложенным дорогам), 160 км в день считалось очень хорошим результатом. Письмо, которое было необходимо доставить на расстояние 1600 километров от Рима, обычно достигало места своего назначения через сорок и более дней. Этот срок считался приемлемым. Это была самая быстрая система передачи информации, которой когда-либо пользовался человек. С упадком Рима такая скорость так и не была достигнута до относительно недавнего времени. (Очень быстро работала система ямов и ямщиков в Монгольской империи и в XIII–XVIII веках в России. – Ред.) Это если не считать инков.

«Инки [это опять пишет Педро де Сьеса де Леон] изобрели самую лучшую систему почтовых станций, которую только можно было придумать или изобрести… И эти курьеры бегали так хорошо, что через небольшой промежуток времени они [правители Инки] уже знали, что произошло на расстоянии трехсот, пятисот и даже восьмисот лиг [одна испанская лига равна 5,5 км]… можно быть уверенным, что на быстрых лошадях новости не могли быть переданы с большей скоростью».

Эти расстояния кажутся невероятными. И тем не менее почти все первые хронисты сходятся в том, что гонцы-часки могли пробежать, сменяя один другого, расстояние в 2000 км между Кито и Куско за пять дней. И это на высоте от 1800 до 5200 м над уровнем моря! Это значит, что бегунам приходилось пробегать в среднем около 400 км в день (т. е. около 17 км/ч!), что в два с половиной раза быстрее, чем это делали римские курьеры, пользуясь своими мощеными дорогами. Говорили, что даже свежую рыбу Правителю Инке доставляли ежедневно, а ведь самое короткое расстояние от моря до Куско было свыше 200 км. Эти утверждения приводились и подвергались сомнению поочередно. И на то есть веская причина, так как кажется невероятным, что люди могли бегать на таких больших высотах и не падать без сил от кислородного голодания. Однако работа экспедиции фон Хагена, которая проводила эксперименты с известными отмеченными расстояниями на до сих пор сохранившейся дороге, доказала, что индейцы могли пробегать милю (1,609 км) за шесть с половиной минут (т. е. 4 минуты на километр), а система эстафетного бега давала возможность покрыть такое расстояние в установленное время (такая скорость позволяет пробежать за сутки 360 километров. – Ред.).

Скорость была очень важна для инков. Расстояния были такими огромными, что восстания можно было подавить лишь при условии, что воины совершат быстрый марш-бросок в очаг инфекции. Скорость, естественно, не есть цивилизация, но скорость стирает пространство, и способность гонцов-часки приносить известия о любом вторжении или мятеже была главным фактором, способствующим сохранению империи в целости. Многократно цитировавшееся высказывание генерала Конфедерации Форреста было идеальным выражением точки зрения инков («Побеждает самый быстрый»). Пространственно-временное равенство сводилось к системе часки. Инка завоевывал пространство, устраняя (уничтожая его).

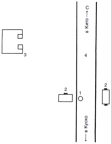
Иллюстрация к книге — Ацтеки, майя, инки. Великие царства древней Америки [i_248.jpg]

Рис. 162. Общий вид и назначение почтовых станций часки (о'кла). Несколько таких станций были найдены на более широкой, чем обычно, дороге между Хаухой и Бонбоном. В центре дороги (1) находилась высокая платформа для высматривания приближающихся гонцов (2) дома для гонцов-часки, где они жили круглосуточно, ожидая сообщений, который нужно отнести на следующую почтовую станцию. На некотором расстоянии от дороги находился небольшой постоялый двор тампу (3). Эта дорога инков (4) была шириной 11 м.

Нарисовано Пабло Каррерой по записям и наблюдениям автора книги


Помимо постоялых дворов тампу, построенных вдоль дороги, там стояли хижины грубой постройки (о'кла) для часки, в которых могли поместиться два человека; в таких хижинах, расположенных одна от другой на расстоянии приблизительно 2,5 км, были кровать и очаг. Обученные бегуны со специальными опознавательными знаками ожидали прибытия бегунов с соседней станции. Таких курьеров брали из деревни, через которую проходил конкретный участок дороги инков. Они с юных лет тренировались в беге на таких больших высотах; частью их обучения были игры, включающие состязания в беге. «Молодые люди знатного происхождения, – писал один наблюдательный иезуит в XVI веке, – имели обыкновение соревноваться в беге вверх по склону горы Уанакаури. Это было и остается [он писал это в 1570 году] широко распространенным обычаем у индейцев». Со своими необычно развитыми легкими – результат постоянного пребывания на больших высотах – гонцы-часки соответствовали всем требованиям настоящих спортсменов и могли бегать с большой скоростью на высотах, на которых другие бегуны, не приспособленные к таким условиям, так бегать не могли.

Реклама
Вход
Поиск по сайту
Ищем:
Календарь