Книга Персы и мидяне. Подданные империи Ахеменидов, страница 19 – Уильям Куликан

Авторы: А Б В Г Д Е Ж З И Й К Л М Н О П Р С Т У Ф Х Ч Ш Ы Э Ю Я
Книги: А Б В Г Д Е Ж З И Й К Л М Н О П Р С Т У Ф Х Ц Ч Ш Щ Ы Э Ю Я
Бесплатная онлайн библиотека LoveRead.ec

Онлайн книга «Персы и мидяне. Подданные империи Ахеменидов»

📃 Cтраница 19
Иллюстрация к книге — Персы и мидяне. Подданные империи Ахеменидов [pic_26.jpg]

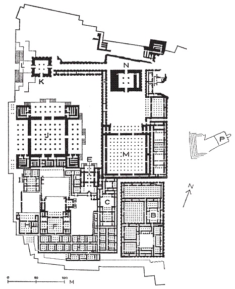
Рис. 26. План Переспали. В – сокровищница; С – гарем; Е – центральный зал; F – дворец Ксеркса; H – неидентифицированный дворец; I – дворец Дария; J – ападана; К – ворога Ксеркса; L – северо-западная лестница; М – тронный зал Ксеркса; N ворога процессий; Р – скальная гробница.


Персеполь основал Дарий вскоре после 518 г. до н. э. Золотые и серебряные таблички из-под фундамента зала аудиенций (ападаны) показывают, что он начал строительство до своей скифской экспедиции 513 г. Очевидно, что это было до окончательного завершения террасы, поскольку в надписи, нанесенной на южный фасад, упоминаются «заморские земли», то есть Европа.

Строения Персеполя были непосредственным развитием по сравнению с Пасаргадами и Сузами, более ранней столицей Дария. Хотя в Пасаргадах отсутствовала ападана сузского или персепольского типа, обнаруженные там квадратные и прямоугольные залы с колонами и портиками являются основными архитектурными элементами Персеполя, а ворота Ксеркса в Персеполе, без сомнения, представляют собой копию гипостиля сторожевого дома в Пасаргадах. То же сочетание камня и сырцового кирпича, порталы и отверстия-окна, сооруженные из массивной каменной кладки, промежуточные стенные пространства из быстро разрушавшегося сырцового кирпича – все это одинаково в обоих местах, как и колонны с парами животных и деревянные оштукатуренные столбы, использованные по всей сокровищнице Персеполя. Но к числу новшеств принадлежат некоторые наиболее привлекательные его черты – лестницы с двойными поворотами (не имеющие явного прототипа), основания колонн в форме колоколов, рифленые колонны и египетские украшения-выкружки на дверных перемычках. Однако, несмотря на чрезвычайную изысканность, архитектура Персеполя изобилует неуклюжими деталями. Регулярность архитектурных элементов должна бы предполагать некоторый уровень «заводского изготовления», но вместо этого мы видим трудоемкие попытки вырезания порталов целиком из одного блока или их конструирования из неодинаковых блоков; стержни колонн – неровные, нестандартизованные, как в Ионии той же эпохи; ступени – неодинаковые и мегалитические, а элементы мостовых непрочны. Все это, конечно, имеет одно очевидное объяснение: в первую очередь Персеполь является творением скульптора, а не архитектора. Цель заключалась не в красоте строения, а в красоте его обработки: конструктивно – это движение вспять. Стандартизация, таким образом, касается скульптора, а неукрашенные пространства выглядят топорной кладкой. Мы не должны, конечно, ради удовлетворения требований современных понятий проводить слишком четкие грани между каменщиком, архитектором и скульптором древних времен, главным образом потому, что строители Персеполя набирались и готовились для выполнения специальной задачи, состоявшей в строительстве не ряда функциональных зданий, а святилища, которое должно было соответствовать важности праздника Нового года.

Таким образом, украшение этих зданий не походило на что-либо сделанное ранее. Словно вся церемония празднования Нового года была сфотографирована и отпечатана на каменных стенах, перед которыми она проходила, и знаменитые скульптуры выглядели хаотичным изображением фаз праздника, главной причины существования дворца. От рельефа к рельефу мы можем следовать за праздничной процессией внутри и вне зданий, завершенных в конце концов Артаксерксом I. Делегации из сатрапий собирались на равнине западнее террасы и спускались на землю со своих транспортных средств (коней, верблюдов, быков, запряженных лошадьми колесниц и ослов), некоторые оставались в дорожных плащах и теплых шарфах. Затем они поднимались на террасу по огромной северо-западной лестнице и проходили через «ворота всех народов», построенные Ксерксом. Вся пышная процессия двигалась перед рассматривающим ее царем и знатными персами, находившимися на западной стороне большой ападаны, где выступающая часть западной стороны террасы формирует ложу для приветствий, господствовавшую над этой сценой. Знатные персы, поднимаясь на ападану по ее северной или восточной лестнице, могли предварительно просмотреть в камне картину, ожидавшую их на лежавшей внизу равнине. На лестнице были вырезаны фигуры данников из 23 стран и между ними молодые хвойные деревца, которыми Дарий засадил равнину. Скульптуры на северной и восточной лестнице ападаны, показанные на фотографиях в этой книге, были закончены Ксерксом; они идентичны по расположению и изображают то же самое событие, но в обратном порядке, поэтому фигуры на северной лестнице повернуты лицами в противоположную сторону по отношению к фигурам на восточной лестнице. Результатом является одно из наиболее захватывающих достижений древнего искусства, ведь фигуры на одной лестнице показывают обратные стороны фигур с другой. Это абсолютно новая концепция, которую некоторые авторы приписали господствующему персидскому дуализму, но для историка искусства она не только дает новые детали платья и оружия на рельефах, но полностью демонстрирует гигантские объемы ксерокопирования, которые пришлось бы сделать древним художникам, даже если эта схема была несовершенной и полной противоречий.

Скульптурные рельефы двух наклонных парапетов лестниц показывают с одной стороны три группы из процессии данников, а с другой – две группы знатных персов и мидян, двигающихся вверх к ападане, перед которыми идет почетный караул «бессмертных», призванный наблюдать за собранием. Выше знати изображены царские конюхи, слуга, несущий кресло, и две царские колесницы на пути к месту обозрения. Вся схема украшения прерывается центральной панелью перед средней лестничной площадкой. В ее центре была надпись Ксеркса, по обе стороны от которой располагались мидийский и персидский гвардейцы. Над этим местом парит крылатый диск Ахурамазды, защищая царские слова. Трехгранные углы центрального и бокового парапетов этих лестниц заполнены симплегмой, львом, атакующим пятящегося быка. Этот геральдический элемент был в некотором роде символом энергии Нового года и благородной покорности года уходящего.

После смотра состоялся пир, проходивший, скорее всего, во дворце Дария, поскольку на лестнице этого здания, не считая более поздних скульптурных дополнений, сделанных Артаксерксом III, в основном изображены слуги, нагруженные бурдюками с вином, мясистыми молодыми животными и блюдами с едой. У косяков северных порталов показан Дарий, входящий во дворец с лилией в руке, сопровождаемый слугами с полотенцами и метелками от мух. На других дверях по всему зданию изображены слуги, несущие полотенца, бутылочки с благовониями, что подтверждает предположение об использовании дворца Дария как зала для пиршества. Вероятно, перед пиром давался непродолжительный прием в центральном зале. Здесь величественная лестница на северной стороне показывает знать, мидян с одной стороны, персов с другой, поднимающихся по лестнице, и каждый из них несет по лилии, традиционное «подношение» перед началом пира на древнем Ближнем Востоке. Царит неформальная атмосфера: гости поворачиваются друг к другу и беседуют, нюхают свои лилии и хлопают соседей по плечу. На южной стороне скульптурные изображения слуг несут еду по лестнице наверх, в здание. Но, несмотря на предположение, что центральный зал был в одно время каким-то образом связан с пиршеством, он, по-видимому, служил и другим целям и, несомненно, являлся свидетелем следующей стадии церемонии. На стенках восточного портала центрального зала Дарий изображен готовым к триумфальному вступлению в громадный тронный зал (М), где собирались все. Сам трон со стоящим за ним наследником престола Ксерксом установлен на огромном помосте на четырех ножках или диване, который несут 28 миниатюрных фигурок в разнообразных облачениях народов-данников. Над помостом находится балдахин с бахромой и охраняющая фигура Ахурамазды. Такой же тип переносного паланкина показан в более крупном масштабе в самом тронном зале и на фасадах гробницы Ахеменидов в Накш-и-Рустаме. Вероятно, сидящего на троне царя и наследника престола на самом деле приносила на официальные мероприятия команда носильщиков из самых разных областей империи.

Реклама
Вход
Поиск по сайту
Ищем:
Календарь