Книга Легенды Царьграда, страница 43 – Андрей Виноградов

Авторы: А Б В Г Д Е Ж З И Й К Л М Н О П Р С Т У Ф Х Ч Ш Ы Э Ю Я
Книги: А Б В Г Д Е Ж З И Й К Л М Н О П Р С Т У Ф Х Ц Ч Ш Щ Ы Э Ю Я
Бесплатная онлайн библиотека LoveRead.ec

Онлайн книга «Легенды Царьграда»

📃 Cтраница 43

209. Святого Стефана близ Сигмы построил Константин [I] Великий [945]. Император же Лев [VI] [946] восстановил его в меньшем размере, а все его материалы: золотую мозаику, разноцветные камни и колонны, сложил у Святых Апостолов и построил храм Всех Святых [947] <ради чудотворений и святости своей жены, имеется в виду первая – Феофания, святая императрица-чудотворица>. Там лежит блаженный Исаакий [948].

210. Святого Митрофана построил Константин [I] Великий. Святую Троицу у Эксакиония, которая именуется теперь Святыми Апостолами [949], построил Константин Великий, а когда она рухнула, ее восстановил Юстиниан [I] Великий.

211. Предтеча в квартале Илла. Там есть источник, и гнездился там огромнейший змий, но была там и императорская сокровищница. И многих сожрал этот змий, но святой Ипатий, прибыв туда со своим посохом с железным острием внизу, осенил змия крестным знамением и проткнул. Взяв труп, он выставил его посреди Форума и сжег [950]. Поэтому и называется так это место, а также от магистра Илла – бунтовщика, который жил там [951].

212. Святую Феофанию за старой апсидой мавзолея построил Константин [VII] Багрянородный, сын Льва [VI] [952]. <Она была погребена в Святых Апостолах и до сего дня источает потоки величайших чудес в женской обители, почтенной именем святого Константина [I] Великого [953].>

213. Спасителя в Халке построил Роман [I] Старший – очень маленьким, с двумя колонками, которые можно видеть в алтаре [954], и назначил в него двенадцать клириков. А Иоанн [I] Цимисхий расширил и повысил его [955], обильно украсив золотом и серебром и придав ему 50 клириков и роги в 30 номисм. Он вложил туда священные венцы, скипетры, дискосы и светильники, золотые и серебряные, золотые одежды и свои личные императорские одеяния и пожаловал [храму] множество неотчуждаемых имений. Туда же вложил он, когда вернулся из своего похода [956], честное Распятие, святой образ из Верита и святые сандалии Христа и Бога нашего, в различных ларцах, золотых и украшенных камнями. И свою могилу устроил он там, и был там похоронен.

214. Святую купальню во Влахернах Василий [II] Младший, благообразный и милостивый благодетель, сын императора Романа [II] Младшего Багрянородного, разобрал и построил заново, украсив еще больше и лучше, чем было. И он сделал образа из большого количества серебра и золота и украсил ее.

215. Когда святой Константин [I] основывал Город, поскольку место было скалистым и он хотел выровнять его для строительства портиков и площадей, то каменотесы, срубая вершины скал, скатывали камни, лежащие вне стен, от [Святой] Варвары до Дворца и от Софий [957] до квартала Елевферия и Золотых ворот. А по сию сторону от этих камней он заложил [подпорные] стены для поддержки стены, чтоб обуздывать бушующее море, бьющееся о скалы.

IV. Сказание о строительстве храма Великой церкви Именуемой Святой Софией

Строительство этой церкви в Константинополе происходило следующим образом.

1. Великую церковь, Святую Софию, сначала возвел Константин [I] Великий [958] – в виде базилики, подобно храмам святого Агафоника и святого Акакия, и, закончив ее, поставил множество статуй [959]. Это здание простояло 74 года [960].

Во времена Феодосия [I] Великого, когда в Константинополе проходил Второй [Вселенский] Собор [961], взбунтовавшиеся ариане сожгли крышу этой Великой церкви, тогда как святейший патриарх Нектарий заседал в старой Святой Ирине, которую также возвел Константин [I] Великий [962].

Прошло два года, а храм стоял без крыши. Тогда, по приказанию императора Феодосия [I], его магистр Руфин [963] перекрыл базилику полуцилиндрическими сводами.

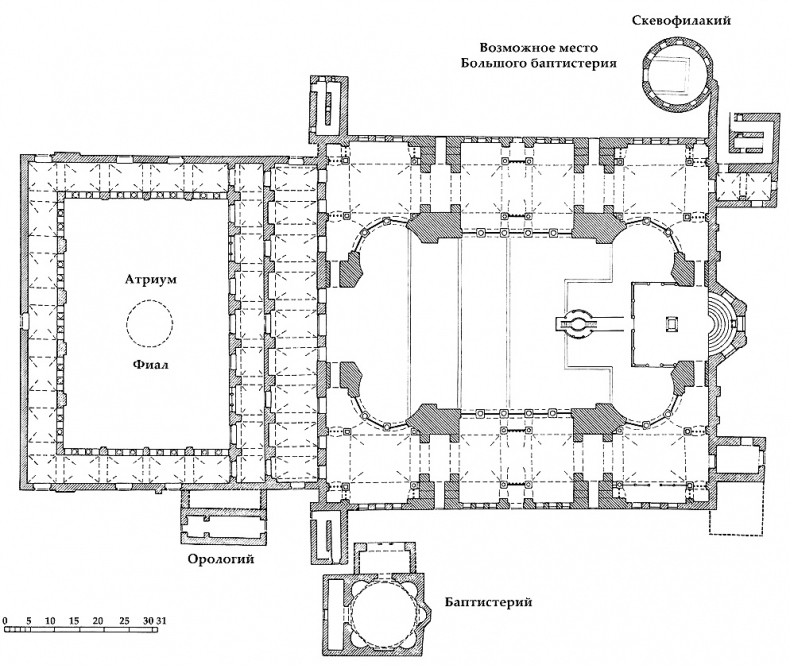
Иллюстрация к книге — Легенды Царьграда [i_019.jpg]

Св. София. План


Через 132 года после Феодосия [I] и по прошествии 208 лет после Константина [I] Великого [964], в пятый год правления императора Юстиниана [I] Великого, после резни на Ипподроме – 35 тысяч погибло там из-за того, что две цирковые партии провозгласили императором Ипатия, патрикия и димарха Голубых [965], – итак, в пятый год правления этого Юстиниана вдохновил его Бог на мысль построить храм, какого не строили со времен Адама.

Реклама
Вход
Поиск по сайту
Ищем:
Календарь